








Va propunem spre vanzare o casa tip duplex situata intr-una dintre cele mai apreciate zone rezidentiale private din Cluj-Napoca – Cartierul Voronet. Proprietatea se remarca prin spatiu generos, compartimentare eficienta si o panorama deosebita asupra orasului, fiind ideala pentru o familie care cauta confort, intimitate si un stil de viata modern.
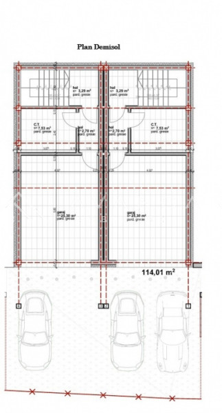
Casa are o suprafata utila de 185,5 mp si este amplasata pe un teren de 450 mp, cu o curte libera de peste 390 mp. Imobilul este dispus pe patru niveluri: demisol, parter, etaj si etaj retras, oferind o organizare clara intre zona de zi si cea de noapte.
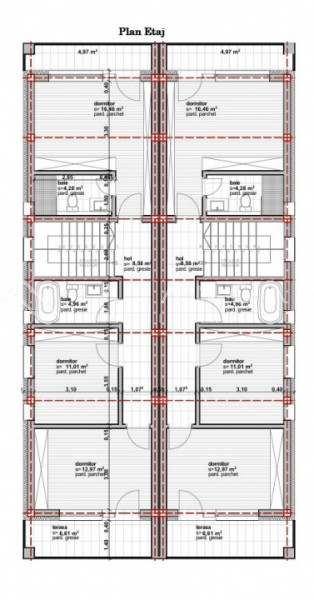
Compartimentarea include 5 camere si 4 bai, cu zone de zi luminoase, dormitor matrimonial cu baie proprie si dressing, precum si multiple spatii exterioare perfecte pentru relaxare. Proprietatea beneficiaza de un balcon de 5 mp, 3 terase insumand 28 mp si 2 terase rooftop de aproximativ 32 mp, cu privelisti spectaculoase asupra orasului si imprejurimilor.
In plus, casa dispune de 2 locuri de parcare si un garaj cu acces direct in interior, un detaliu important pentru confortul zilnic. Expunerea sudica asigura lumina naturala pe tot parcursul zilei.
Cartierul Voronet este recunoscut pentru infrastructura moderna, strazi asfaltate, toate utilitatile disponibile, acces facil la mijloacele de transport in comun si legatura rapida cu orasul. Zona ofera un cadru linistit, aerisit, cu mult verde, fiind ideala pentru familii.
Termenul estimat de finalizare este August 2026.
ID intern: AV7697
Aceasta casa duplex din Cluj-Napoca reprezinta o oportunitate rara pentru cei care cauta spatiu, calitate si o locatie premium.