





Teren de vanzare in cartierul Faget, cu o suprafata de 800 mp si front stradal generos de 19 ml. Proprietatea beneficiaza de PUZ aprobat si se vinde cu proiect autorizat pentru o casa individuala premium, gandita pentru confort, spatiu si functionalitate.
Proiectul prevede o locuinta moderna, dispusa pe trei niveluri: subsol, parter si etaj.
La subsol se regasesc un garaj dublu, camera tehnica, hobby room cu baie proprie si casa scarii.
Parterul ofera o zona de zi luminoasa si bine organizata: hol de acces, baie, bucatarie cu dining generos de 36 mp, un al doilea hol si living separat cu suprafata de 32 mp, perfect pentru relaxare sau socializare.
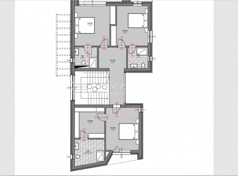
Etajul este destinat zonei de noapte, cu doua dormitoare fiecare avand baie proprie, hol si un dormitor matrimonial de 17 mp, completat de dressing de 11 mp si baie privata de 9 mp.
Zona Faget este recunoscuta pentru atmosfera linistita, aerul curat si proximitatea fata de padure, oferind un cadru ideal pentru o resedinta de familie. Accesul catre oras este facil, iar toate utilitatile sunt disponibile in zona.
O alegere excelenta pentru cei care isi doresc o locuinta premium, gata de construit intr-una dintre cele mai apreciate zone ale Clujului.
Pret : 420.000 Euro + TVA
ID intern : AV7623