






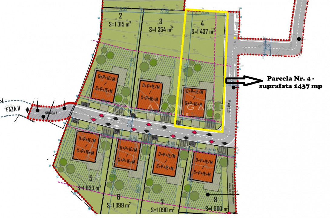
Teren intravilan – 1.437 mp – PUZ aprobat – Feleacu
Vă propunem spre vânzare o parcelă generoasă de 1.437 mp, cu PUZ aprobat, pregătită pentru construcția unei case individuale S+P+Et (Subsol + Parter + Etaj).
Ce înseamnă asta, tradus din limbaj urbanistic?
Înseamnă că birocrația grea este deja rezolvată. Poți trece direct la proiectare și autorizație, fără incertitudini privind regimul de construire.
Avantaje:
– Suprafață ideală pentru o locuință spațioasă și grădină generoasă
– Regim de înălțime: S+P+Et
– Utilități la limita parcelei (apă, curent, gaz)
– Zonă aerisită, liniștită, cu acces facil către oraș
– Cadru natural și panorame specifice zonei Feleacu
Este terenul potrivit pentru cei care își doresc o casă individuală, cu intimitate, lumină și spațiu verde real — nu doar câțiva metri de gazon simbolic.
ID intern : AV7734
Pentru detalii suplimentare, documentație urbanistică sau programarea unei vizionări, vă stau la dispoziție.