











Agenția noastră vă propune spre vânzare un apartament modern cu 3 camere, situat pe str. Mihai Romanul, într-o zonă bine cotată a orașului Cluj-Napoca, ideal atât pentru locuire, cât și pentru investiție.
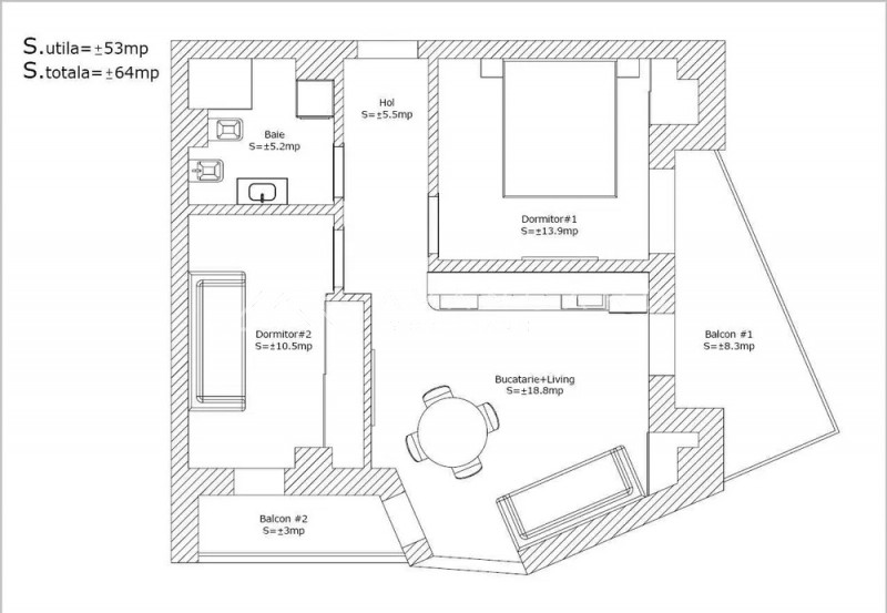
Suprafață utilă: 53 mp
Balcoane: 2 balcoane însumând 11 mp (8 mp + 3 mp)
Suprafață totală: 64 mp
Etaj: 7 din 9
Orientare: Sud–Vest – lumină naturală pe tot parcursul zilei
Compartimentare practică și eficientă:
- hol de acces
- 2 dormitoare
- living open-space cu bucătărie
- baie
- 2 balcoane
Avantaje & dotări:
- apartament complet finisat și utilat
- ferestre cu geam tripan
- centrală termică proprie
- încălzire în pardoseală
- parchet, gresie și faianță de calitate
- mobilier realizat la comandă
- electrocasnice moderne, de calitate superioară
Despre imobil:
- ansamblu rezidențial modern
- parc cu loc de joacă pentru copii
- spații comerciale la parter
- stație de transport în comun la aproximativ 5 minute de mers pe jos
Opțional: loc de parcare în subteranul imobilului – 20.000 EUR
Id client: CO7685
Apartamentul este ideal pentru cei care își doresc confort, funcționalitate și acces rapid către punctele de interes ale orașului.
Pentru mai multe detalii sau programarea unei vizionări, nu ezitați să ne contactați!