







Proprietate situata in inima Clujului, pe una dintre cele mai cunoscute artere ale centrului istoric Strada I.C. Bratianu, oferind o oportunitate distincta atat pentru achizitia de locuit, cat si pentru investitie imobiliara cu potential de valorificare superioara.
Descrierea proprietatii:
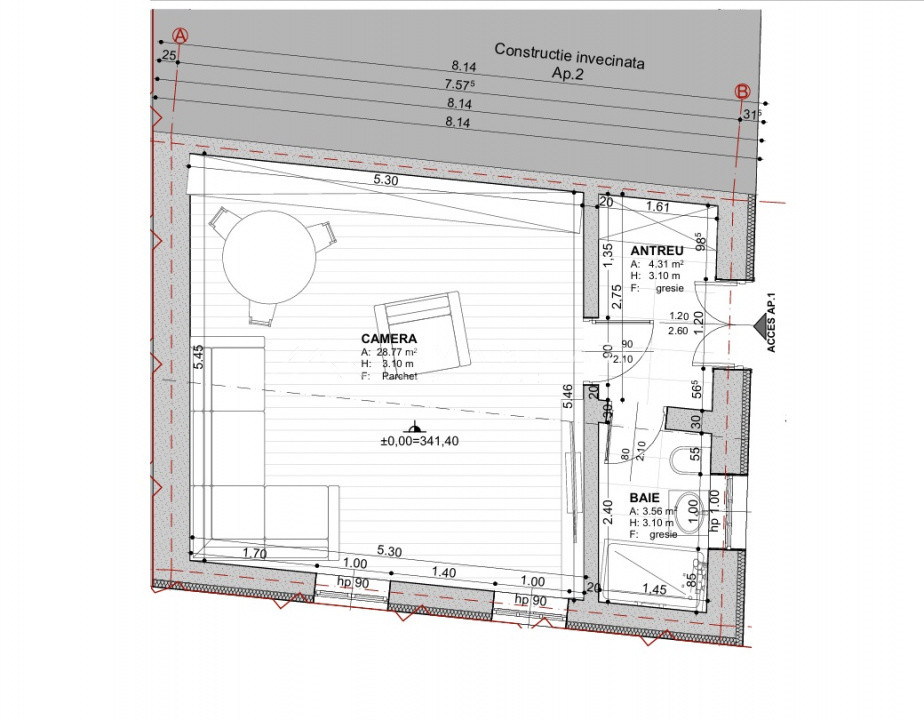
Apartamentul dispune de o suprafata utila de 36.64 mp, compusa din camera, hol si baie, cu o inaltime de 3.10 m ce confera spatiului un caracter aerisit si generos. La aceasta se adauga un pod in suprafata de 38.19 mp, scos din indiviziune si inscris cu Carte Funciara separata, un element cu relevanta juridica si comerciala distincta, ce sporeste considerabil valoarea ansamblului.
Proprietatea beneficiaza de asemenea de un loc de parcare in curtea comuna, un avantaj apreciabil in contextul unui amplasament central.
Potentialul de dezvoltare:
Certificatul de urbanism pentru mansardare, aflat in termen de valabilitate, reprezinta un atu esential: documentatia administrativa necesara a fost deja obtinuta, permitand noului proprietar sa initieze lucrarile de amenajare a podului fara intarzieri birocratice. Prin valorificarea acestui potential, suprafata locuibila poate fi extinsa semnificativ, transformand ansamblul intr-o locuinta de exceptie sau intr-un activ imobiliar cu randament ridicat.
Amplasamentul:
Strada I.C. Bratianu ofera acces direct la principalele institutii, servicii, centre comerciale si culturale ale municipiului Cluj-Napoca, intr-una dintre cele mai solicitate zone rezidentiale si investitionale ale orasului.
Specificatii tehnice:
Suprafata utila apartament: 36.64 mp | Suprafata pod: 38.19 mp | Inaltime libera: 3.10 m | Pod scos din indiviziune cu CF separat | Certificat de urbanism pentru mansardare valabil | Loc de parcare in curte
Aceasta proprietate reuneste o locatie premium, un cadru juridic clar si un potential de extindere imediat valorificabil, o combinatie rara pe piata imobiliara din centrul Clujului.
Pentru detalii suplimentare, documentatie sau pentru a programa o vizionare, va invitam sa ne contactati.
ID intern : AV7778